校第八届学生技能竞赛暨第十五届科技创新节系列报道之“复杂部件数控多轴联动加工技术”赛项

作者:实验实训中心     发布时间:2022-05-30     信息来源:      阅读次数: 【关闭】


  2022年5月14日awc777万象城娱乐官网第八届校园技能大赛“复杂部件数控多轴联动加工技术”在7W205 S虚拟实训室开幕。此次竞赛共计28人参加,组织形式为个人赛,全程4小时,主要任务包含工艺编制、数字建模、产品三轴编程、产品四轴编程、三轴数控加工、四轴虚拟仿真。

图一:赛场整体

  此次复杂部件数控多轴联动加工技术赛项选用2018年山东省职业院校技能大赛真题,重点考核高职院校数控技术等专业学生复杂部件造型、加工工艺设计核心知识以及数控机床编程与加工核心技能的运用,考核选手弘扬工匠精神、职业道德与团队协作能力;展示高职院校数控技术课程改革与建设成果,促进高职教育校企合作的深入开展、高职教育服务社会能力的提升;促进高职院校专业建设和教学改革,加快工学结合人才培养模式改革与创新步伐;推动高职院校紧贴产业需求的教育教学改革,提升学生职业能力,培养装备制造业企业急需的数控技术高素质高技能型人才。

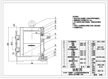
图二:考核试题

  赛后经过评委小组的评定,20数控班储康,赵猛获得一等奖,此次校技能大赛比赛,有效的检验了参赛选手的综合能力,引领和促进数控技术及相关专业专业建设与课程改革;推进校企合作,协同产业发展,深化产教融合,提高服务社会能力;检验和考核学生的质量、效率、成本、安全、环保意识及教学成效,考查学生的工匠精神、团队协作、计划组织的综合职业能力;提升awc官网数控技术专业培养适应企业需求的高素质技术技能型人才的水平,为全国职业院校技能大赛,做好了人才选拔和储备工作。

作者:谭邦俊

审核;张信群


Copyright 2020 All Right Reserved. 版权所有 allwincity万象城-万象城awc777-官方网站实验实训中心

地址:滁州市丰乐大道2188号

电话:0550-3854637